云境天合裂缝监测站应监测:地表裂缝、卸荷裂隙、房屋或结构裂缝等相对位移【型号:TH-LFZ1,物联网一体化设备,云境天合支持定制服务】在地质活动、工程荷载及环境因素共同作用下,地表裂缝、卸荷裂隙及建筑结构裂缝的动态扩展往往成为灾害发生的前兆,其相对位移的精准监测是防范风险、保障安全的核心手段。云境天合裂缝监测站聚焦这一需求,通过部署高精度传感器网络,实现对多类型裂缝的毫米级相对位移实时追踪。针对地表裂缝,设备可捕捉因地震、沉降引发的水平或垂直错动;对于岩土工程中的卸荷裂隙,其传感器能感知开挖、爆破等作业导致的应力释放引起的裂缝扩张;在建筑领域,系统可长期监测墙体、梁柱等结构裂缝的开合度变化,预警因材料老化或荷载超限引发的安全隐患。通过非接触式测量与智能数据融合技术,该监测站突破传统方法的局限,为地质灾害预警、工程安全评估及建筑维护提供连续、可靠的位移数据支撑。

一、产品简介
本产品广泛应用于地质灾害、岩土工程、建筑工程、交通、水利、市政等多个监测领域,特别适用于地表裂缝、卸荷裂隙、房屋或结构裂缝等相对位移的精确监测。
在地质灾害监测中,能够实时捕捉地表裂缝的微小变化,为滑坡、崩塌等灾害预警提供关键数据;在岩土工程中,可有效监测卸荷裂隙的发展趋势,确保工程安全;
在建筑工程领域,能够精准检测房屋或结构裂缝的位移情况,为建筑物的健康诊断和维护提供科学依据;
在交通、水利和市政工程中,同样能够发挥重要作用,确保基础设施的长期稳定运行。
通过高精度的监测数据,帮助用户及时采取应对措施,降低风险,保障工程和人员安全。
二、技术参数
| 量程 | 0-1000mm |
| 精度 | ±0.02%F.S |
| 响应时间 | 1s |
| 外壳材质 | ABS |
| 供电电压 | 12-24VDC(0.4W@12V) |
| 通讯方式 | modbus-485 |
| 太阳能板功率 | 8W |
| 太阳能板标准工作电压 | DC5V |
| 内置锂电池容量 | 5000mAh |
| 支架材质 | 不锈钢 |
| 采集器 | 带3年流量 |
| 数据传输 | 标配每10分钟传输一次,支持定制 |
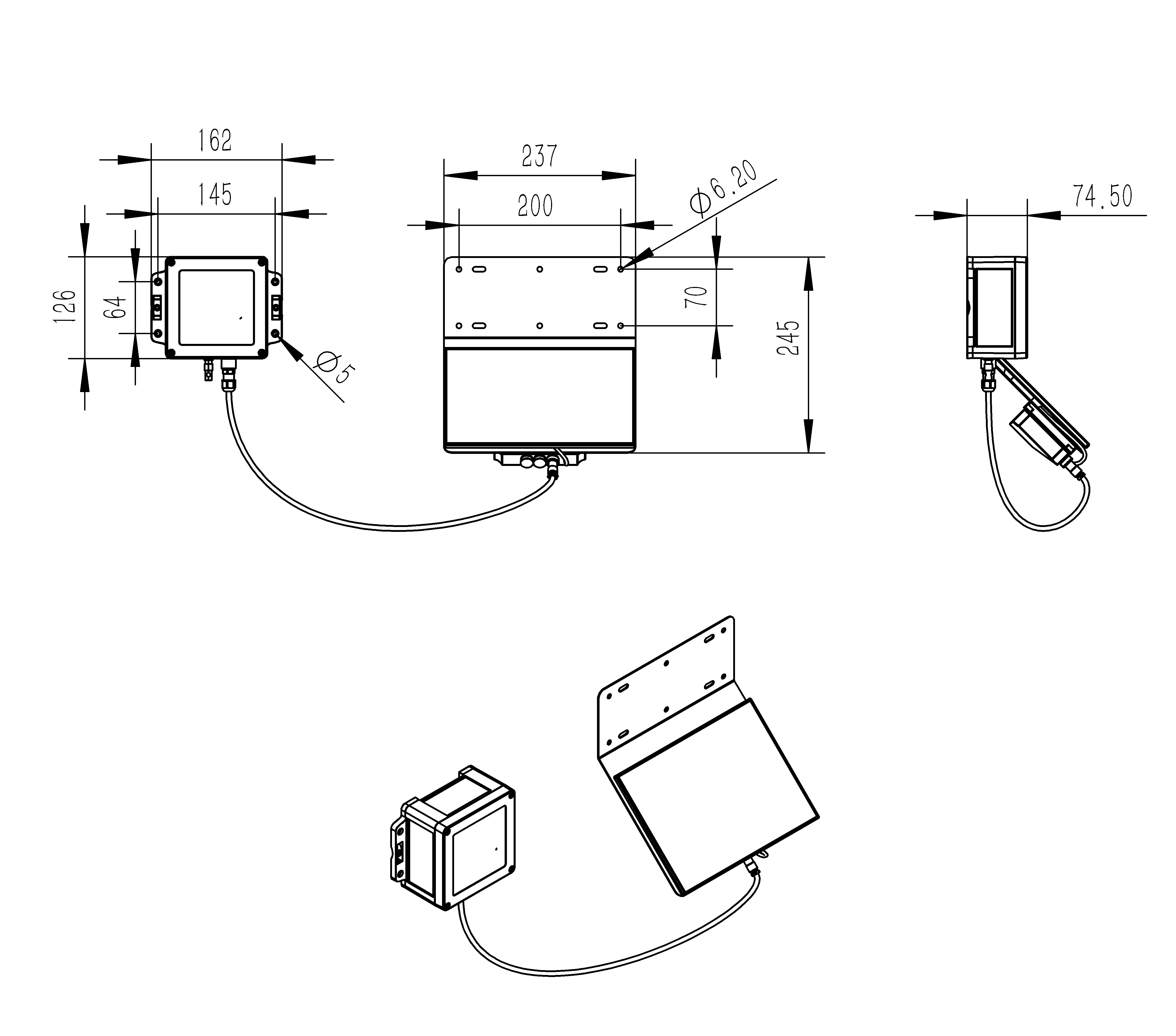
三、产品尺寸图
