产品分类
CLASSIFICATION
相关文章
ARTICLES2026-03-06
2026-02-10
2025-12-19
2025-03-25
2024-12-26
2024-12-26
2024-12-26
2026-01-09
2025-03-14
2025-09-11
详细介绍
地裂缝监测一体机集成高精度传感器、数据处理单元与远程通信模块,可实时捕捉地表或结构裂缝的动态变化,包括宽度扩展、位移方向及扩展速率等关键参数。设备支持多通讯方式,实现数据远程传输与设备远程控制,内置低功耗设计与太阳能供电系统,适应野外长期监测需求。其高集成结构简化安装流程,广泛应用于地质灾害预警、交通基础设施维护及建筑工程健康诊断等领域,为结构安全评估提供可靠数据支撑。

一、产品简介
地裂缝监测一体机广泛应用于地质灾害、岩土工程、建筑工程、交通、水利、市政等多个监测领域,特别适用于地表裂缝、卸荷裂隙、房屋或结构裂缝等相对位移的精确监测。
在地质灾害监测中,能够实时捕捉地表裂缝的微小变化,为滑坡、崩塌等灾害预警提供关键数据;在岩土工程中,可有效监测卸荷裂隙的发展趋势,确保工程安全;
在建筑工程领域,能够精准检测房屋或结构裂缝的位移情况,为建筑物的健康诊断和维护提供科学依据;
在交通、水利和市政工程中,同样能够发挥重要作用,确保基础设施的长期稳定运行。
通过高精度的监测数据,帮助用户及时采取应对措施,降低风险,保障工程和人员安全。
二、技术参数
| 量程 | 0-1000mm |
| 精度 | ±0.02%F.S |
| 响应时间 | 1s |
| 外壳材质 | ABS |
| 供电电压 | 12-24VDC(0.4W@12V) |
| 通讯方式 | modbus-485 |
| 太阳能板功率 | 8W |
| 太阳能板标准工作电压 | DC5V |
| 内置锂电池容量 | 5000mAh |
| 支架材质 | 不锈钢 |
| 采集器 | 带3年流量 |
| 数据传输 | 标配每10分钟传输一次,支持定制 |
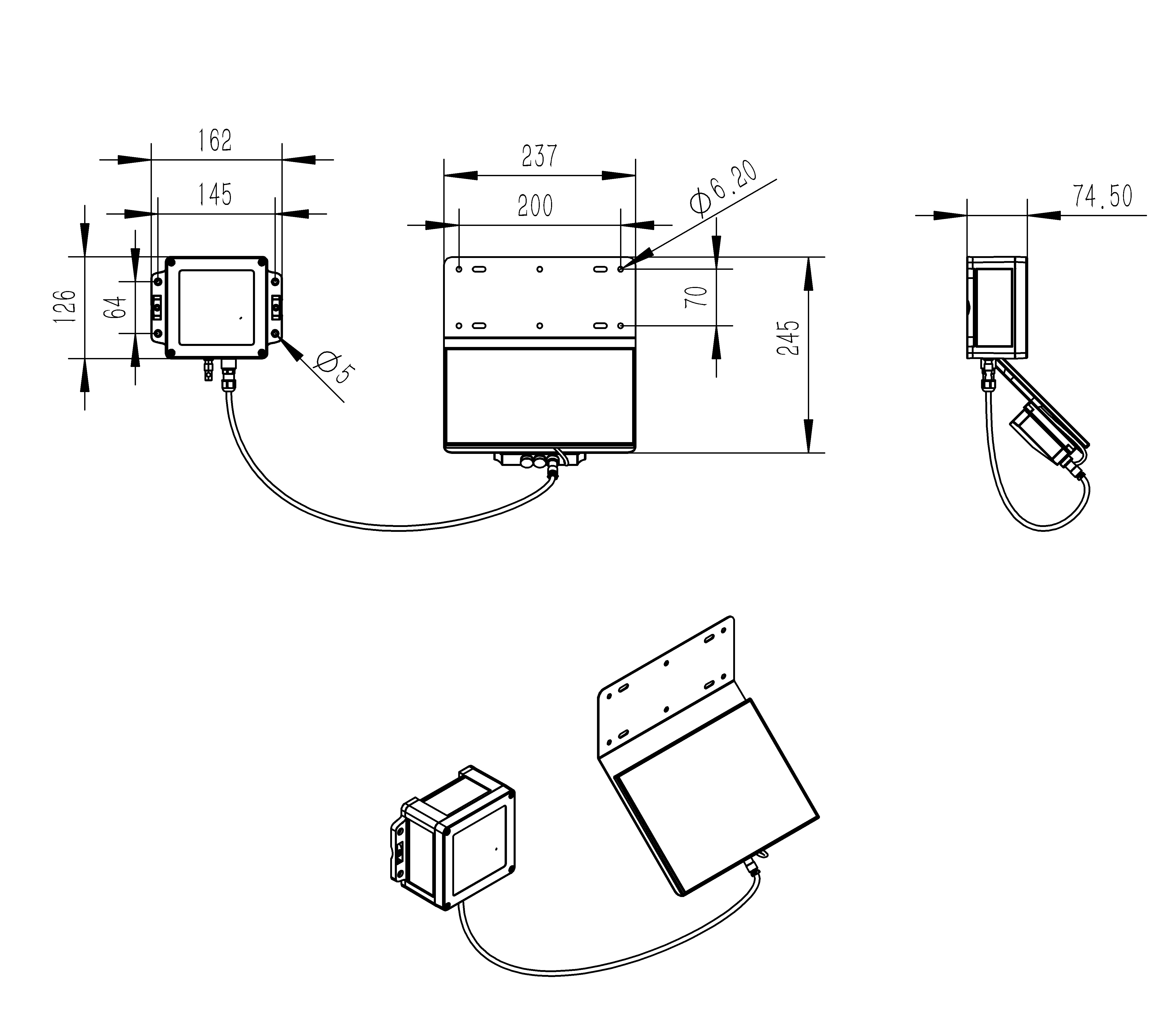
三、产品尺寸图

产品咨询